Leased

Low Maintenance Townhome Living At Clayton's Prime Location

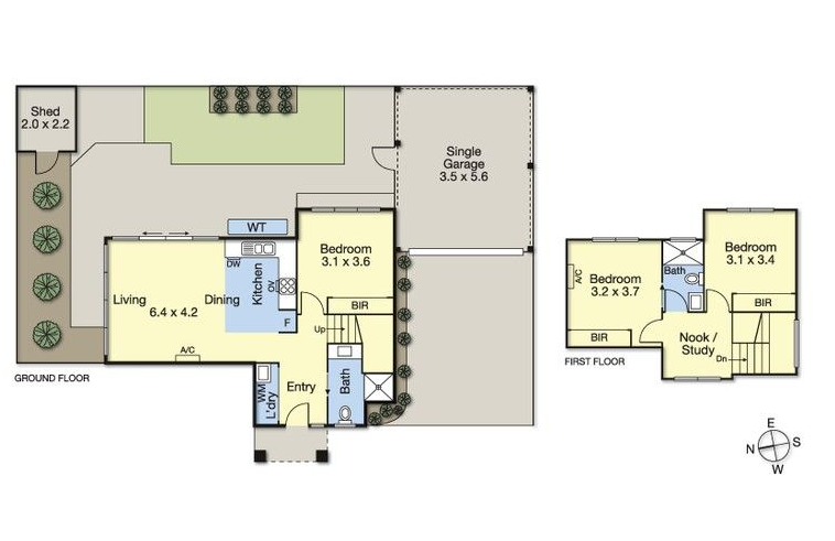
This well-maintained property offers low maintenance modern townhouse living with being located at a prime location. Walking distance to Monash Medical Centre and private hospitals; St Peter's Primary School; Clayton Road shopping strip; Clayton Train station and Monash University Clayton Campus. Easy access to Centre Road; Princes Highway and Monash Freeway (M1). Local parks and golf clubs are within easy reach of this property. 

This townhouse features:

- Open plan living and dining areas lead to a low maintenance backyard

- Modern kitchen equips with gas cooktop, dishwasher, oven and stone benchtops

- 3 good size bedrooms with BIR

- Split system heating and cooling

- Single lock up garage with potential extra parking in front of it

Book an inspection is easy! Please click "Book an Inspection Time", "Request an Inspection" or "Email Agent" to book an inspection, you will receive an instant SMS/Email regarding your booking or request. In this way, you will not miss any inspections, price changes and similar properties that may be suitable for you. We assure you that your details remain confidential and are only used for the purpose of securing you a property. Alternatively, feel free to call 0499799771 for more information. Please check your inbox/spam mailbox for booking confirmation.

"PHOTO ID MAY BE REQUIRED AT ALL INSPECTIONS. 

Photos and videos are for advertising purposes only; We try to use the most accurate photos of the property. However, the photos may differ from the actual condition of the property. We strongly recommend you join the inspection to confirm the condition of the property. Please make sure you have agreed on the property's current condition before you apply.

3 2 1
Available Leased
Address 3/82 Kanooka Grove, Clayton
Price Under Application
Property Type Rental
Property ID 605
Category Townhouse

Agent Details

James Ollaik photo

James Ollaik

0499 799 771
View Profile
Danny Zhang photo

Danny Zhang

0420 770 314
View Profile