Morden Townhome At Melbourne's Sought-after Suburb

Close enough to the city to be convenient, far enough away to get out from the hustle and bustle of closer suburbs. Kew is a safe and friendly suburb with a lot of grocery shopping and heaps of great restaurant options. Easy access to some of Melbourne's leading private schools, vast parklands and Yarra bike tracks.

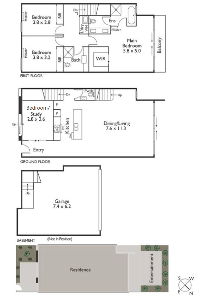
This modern townhouse features:

Ground floor

- Open plan living and dining area with access to a private courtyard with plenty of sunlight

- Modern kitchen with quality stone island benchtop; Miele kitchen appliances and quality cupboards

- A multifunction room could be used as a guest bedroom or a study

- A neat front open space for bikes parking or plants

First floor

- 3 good size bedrooms; master bedroom with WIR and ensuite bedroom equipped with a bathtub, heated towel rail, shower and dual-sink washroom; other 2 bedrooms with BIRs

- A central bathroom with a sparkling shower and heated towel rail

- All bedrooms with hydraulic heating and central air conditioning

- European laundry 

- Access to a private balcony from the master bedroom

Basement

- A double garage with an on-wall storage cabinet

Walking distance to local favourite Boccaccio SUPA IGA supermarket, Deepdene Primary School and Genazzano FCJ College. Easy access to Boroondara's hotspots, Eastern freeway, Camberwell Central and so much more. 

Book an inspection is easy! Please click "Book an Inspection Time", "Request an Inspection" or "Email Agent" to book an inspection, you will receive an instant SMS/Email regarding your booking or request. In this way, you will not miss any inspections, price changes and similar properties that may be suitable for you. We assure you that your details remain confidential and are only used for the purpose of securing you a property. Alternatively, feel free to call 0499799771 for more information. Please check your inbox/spam mailbox for booking confirmation.

"PHOTO ID MAY BE REQUIRED AT ALL INSPECTIONS. 

PLEASE NOTE: Open for Inspection Times and Property Availability is subject to change or cancellation without notice; 

Photos and videos are for advertising purposes only; We try to use the most accurate photos of the property. However, the photos may differ from the actual condition of the property. We strongly recommend you join the inspection to confirm the condition of the property. Please make sure you have agreed on the property's current condition before you apply.

 

4 2 2
Available Leased
Address 6/1289 Burke Road, Kew
Price $850 Per Week
Property Type Rental
Property ID 517
Category Townhouse

Agent Details

James Ollaik photo

James Ollaik

0499 799 771
View Profile
Danny Zhang photo

Danny Zhang

0420 770 314
View Profile