Architectural Designed Unit At Armadale's Prime Location

Classic brick home designed by famous Chancellor Patrick Architects on one of Armadale's finest streets. Walking distance to the centre of High Street and Lauriston Girl's School, this unit is surrounded by plenty of shops, public transport, elite schools and an outstanding neighbourhood. 

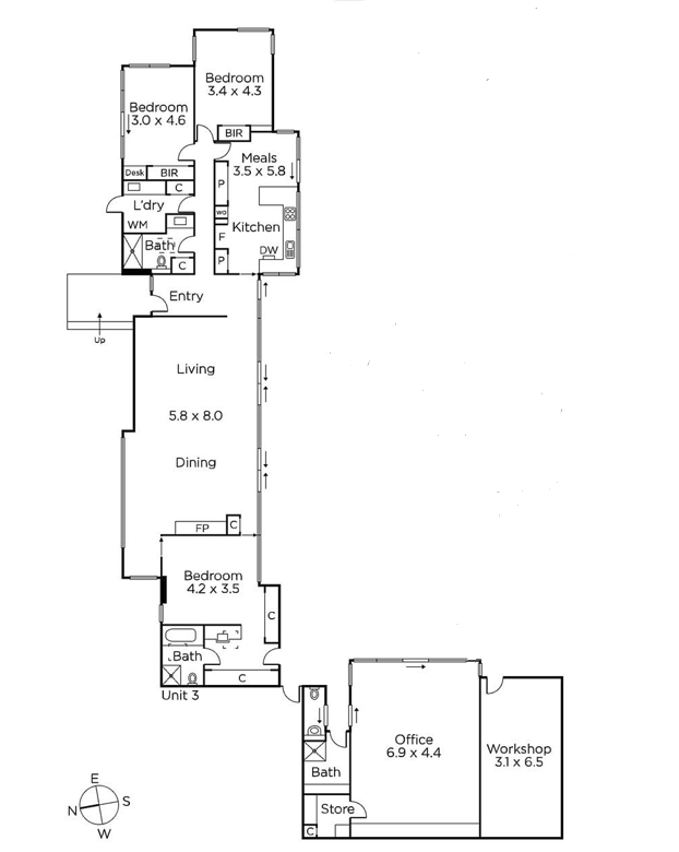
This property features:

- Spacious light-fitted living room with access to an outstanding open space 

- Kitchen with a dining area

- Good size bedrooms with BIR

- Front multipurpose room (sitting room/lounge/bedroom) with ensuite bathroom with bathtub

- Workshop/office with built-in cupboards

- Central bathroom with shower

- A carport with 2 car spaces plus more driveway parking

- Split system air conditioning 

- Architecturally designed ceiling height provides a spacious space feeling 

Book an inspection is easy! Please click "Book an Inspection Time", "Request an Inspection" or "Email Agent" to book an inspection, you will receive an instant SMS/Email regarding your booking or request. In this way, you will not miss any inspections, price changes and similar properties that may be suitable for you. We assure you that your details remain confidential and are only used for the purpose of securing you a property. Alternatively, feel free to call 0499799771 for more information. Please check your inbox/spam mailbox for booking confirmation.

"PHOTO ID MAY BE REQUIRED AT ALL INSPECTIONS. 

PLEASE NOTE: Open for Inspection Times and Property Availability is subject to change or cancellation without notice; COVID restriction may apply due to the government's guideline; 

Diamond PM thanks for your understanding and corporation. We wish you all the best and stay healthy.

Photos and videos are for advertising purposes only; We try to use the most accurate photos of the property. However, the photos may differ from the actual condition of the property. We strongly recommend you join the inspection to confirm the condition of the property. Please make sure you have agreed on the property's current condition before you apply.

3 3 2
Available Leased
Address 30 Mercer Road, Armadale
Price $780 Per Week
Property Type Rental
Property ID 450
Category Unit

Agent Details

James Ollaik photo

James Ollaik

0499 799 771
View Profile
Danny Zhang photo

Danny Zhang

0420 770 314
View Profile