Superb Location Cozy Unit For Rent

With Woolworth and Brickworks Shopping centre sits in walking distance, this unit is ideally located in the MWSC catchment, minutes to Burwood East Primary, Mount Scopus College, PLC, Deakin University, Burwood One Shopping Centre. Easy access to Box Hill, Glen Waverley, Eastern Freeway(M3) and public transports. 

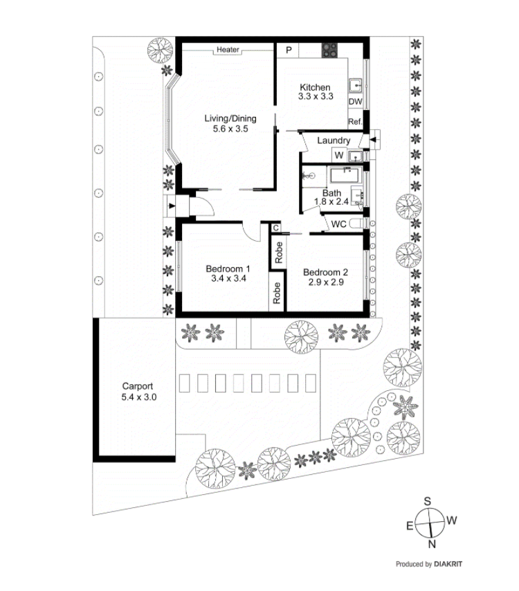
This cozy unit features:

- 2 good size bedrooms with BIRs

- Central bathroom with bathtub

- No carpet flooring (with timber and tiles)

- Light fitted lounge room

- Laundry room with access to the backyard

- North facing low-maintenance yard

Book an inspection is easy! Please click "Book an Inspection Time", "Request an Inspection" or "Email Agent" to book an inspection, you will receive an instant SMS/Email regarding your booking or request. In this way, you will not miss any inspections, price changes and similar properties that may be suitable for you. We assure you that your details remain confidential and are only used for the purpose of securing you a property. Alternatively, feel free to call 0499799771 for more information. Please check your inbox/spam mailbox for booking confirmation.

"PHOTO ID MAY BE REQUIRED AT ALL INSPECTIONS. 

PLEASE NOTE: Open for Inspection Times and Property Availability is subject to change or cancellation without notice; 

Photos and videos are for advertising purposes only; We try to use the most accurate photos of the property. However, the photos may differ from the actual condition of the property. We strongly recommend you join the inspection to confirm the condition of the property. Please make sure you have agreed on the property's current condition before you apply.

2 1 1
Available Leased
Address 5/51-53 Middleborough Road, Burwood
Price $400 Per Week
Property Type Rental
Property ID 325
Category Unit

Agent Details

James Ollaik photo

James Ollaik

0499 799 771
View Profile